The Bay View

  • Deal Type
  • For Sell
  • Тype
  • House
  • Area
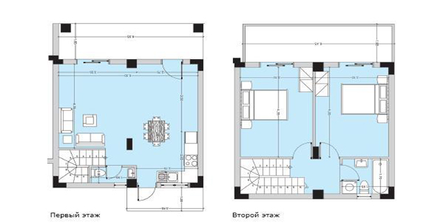
  • 107 m2
  • Floors
  • 2
  • Rooms
  • 2
Комплекс, включающий в себя пять домов в городском стиле и шесть отдельных резиденций, спроектирован в традиционном для Крита стиле с ослепительным видом на лазурный залив Суды и мыс Акротири. Рядом находится Аптера с руинами монастыря Святого Иоанна Крестителя и другими местами исторического значения, включая Турецкую крепость. В Мегала-Хорафья есть мини-маркет и несколько ресторанчиков с прекрасными видами и кухней.

В стоимость домов включены система электрического и солнечного подогрева воды, окна с двойным стеклопакетом, широкий выбор керамической плитки и кафеля для внутренней отделки помещений, встроенная бытовая техника (посудомоечная и стиральная машины, морозильная камера, плита с духовым шкафом), а также большой выбор комплектов кухонной мебели и платяных шкафов. Предусмотрены коммуникации для установки системы кондиционирования, телефонной связи и спутникового телевидения. На территории комплекса имеются два больших общих плавательных бассейна. Отличное качество строительства домов данного комплекса и большой спрос на недвижимость в этом регионе гарантирует Вам надежное капиталовложение.
  • Location:
Country:Greece
State:Crete Region
City:Crete Region
Property Type:House
  • Characteristics
Rooms:2
Living Area (m2):107

177 120 €

206 327 $
15 815 267 ₽

On the map

Other properties of this seller