Apartment in Prague 3, 4 Bedrooms, 159 m2 + 79 m2 terrace

  • Deal Type
  • For Sell
  • Тype
  • Apartment
  • Area
  • 238 m2
  • Floors
  • 12
  • Rooms
  • 4
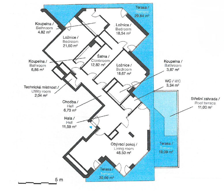
www.abrupt.ru     Продается просторная квартира с 79 м2 террасой, расположенная на 4-м этаже закрытого жилого проекта с частным парком, 24-часовой рецепцией, парковкой, службой охраны и кафе. Квартира находится в непосредственной близости с парком Парукаржка (park Parukářka).
Интерьер квартиры состоит из просторной гостиной с кухней-нишей, 3-х спален с примыкающими ванными комнатами, гардеробной, отдельного туалета и технического помещения. Квартира характеризуется рядом французских окон, обеспечивающих достаточно дневного света и доступ к террасе из всех жилых комнат.
В квартире имеются деревянные полы в главной жилой части, большого формата напольная и настенная плитка в ванных комнатах, полы с подогревом, современный кухонный гарнитур и встроенные шкафы. Покупная цена включает в себя 2 парковочных места в гараже и подвал.
Проект находится в приятном районе в Праге 3 (Praha 3) с полным перечнем инфраструктуры (Ольшанская поликлиника, почта) и с хорошей транспортной доступностью до центра города благодаря трамвайному сообщению.
Интерьер 159 м2, терраса 79 м2, подвал 6,5 м2.
  • Location:
Country:Czech Republic
State:Prague
City:Prague
Property Type:Apartment
  • Characteristics
Rooms:4
Living Area (m2):159
Total Area (m2):238
  • Facilities
Equipment:Elevator, Balcony/Terrace

425 300 €

499 776 $
39 706 481 ₽

On the map

Other properties of this seller