Bеликолепный меблированный семейный дом на берегу реки Вецдаугава

  • Deal Type
  • For Sell
  • Тype
  • House
  • Area
  • 307 m2
  • Floors
  • 2
  • Rooms
  • 7
Продается великолепный меблированный семейный дом на берегу реки Вецдаугава. Дом находится в  красивом и тихом жилом районе - Вецаки,в 600 метрах от моря. Дом  расположен в эксклюзивном жилом районе с прекрасно развитой инфраструктурой. До  центра  Риги на машине можно доехать за 30 минут, а на лодке  за 20 минут.
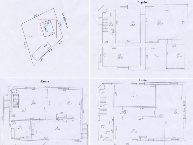
На участке общей площадью 1096 м2 расположены в два здания. Первое здание- жилой дом с общей площадью 347,4 м2. На первом этаже находится: кухня, холл, гостиная и ванная комната. На втором этаже находятся: три спальни, туалет. В подвале находятся: котельная, есть возможность построить зону отдыха. 
Площадь второго  здания составляет 188, 9 м2. В здании находится гараж, две отдельные квартиры с отдельными входами, отдельными ванными комнатами и кухнями. В одной из квартир построена сауна. Здание будет вполне подходящим для бабушек и дедушек. Так же квартиры можно сдавать в аренду, что обеспечить дополнительный денежный поток. К каждому зданию проведены все коммуникации и отдельно установлены газовые котлы.
Позвоните нам, и мы с удовольствием покажем вам недвижимость, возможно, с лучшим видом в Риге.
  • Location:
Country:Latvia
State:Riga
City:Riga
Property Type:House
  • Characteristics
Year of Construction:1995
Rooms:7
Sleeping:5
Living Area (m2):347
Total Area (m2):307
Land plot (m2):1096
  • Facilities
Type of Kitchen:Built-in kitchen
Bathroom:Shower, Tub
Other Facilities:Pantry, Room for bikes, Basement
Equipment:Balcony/Terrace, Fireplace, Sauna
Heating:Gas, Wood heating
Furniture:Fully
Additional Equipment:Washing machine, Fridge

319 000 €

374 861 $
29 782 195 ₽

On the map

Other properties of this seller